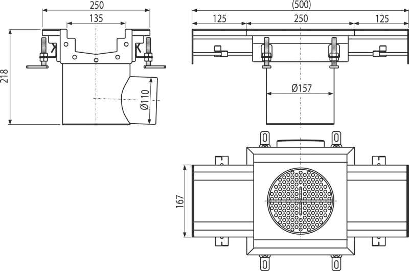
Rūpnieciskais traps 250 x 250 - 135 no nerūsējošā tērauda AISI 316L, ar kārbveida izvadiem

APR6-1221-135

Mitrā hidroaizvara ūdens staba augstums50 mm
  • Ūdens novadīšanai lielas rūpniecības objektos, komerciālos objektos, piemēram, ķīmijas un pārtikas rūpniecībā
  • Liela ūdens daudzuma novadīšanai, piemērots arī lieliem attālumiem
  • Trapsno nerūsējošā tērauda, apstrādāts ar kodināšanas un pasivēšanas metodēm, kas garantē nerūsējošā tērauda īpašību un funkcionalitātes saglabāšanu daudzus gadus
  • Visa sistēma ir stingri noenkurota betonā ar regulējamām kājām un sānu enkuriem
  • Izmantotā blīve nodrošina pilnīgi ūdensizturīgu savienojumu
  • Trapa materiāls: nerūsējošais tērauds 1,5 mm, DIN 1.4301
  • EN 1253-1
Daudzums (kastē) 1 ks
Daudzums (paletē) - ks
Izmēri (gab.) 218×500×250 mm
Svars (gab.) 5,5735 kg
Svars (kastē) 5,5735 kg
Svars (paletē) - kg
  • Noteka
  • Regulējamas kājas 4 gab.
  • Hidroaizvars
  • Montāžas komplekts
Product codeEANTechnical sheet
APR6-1221-1358595580573485Technický list